AURORA 952 (L459) – Tomt 15 – Felt 4

Hytteinfo

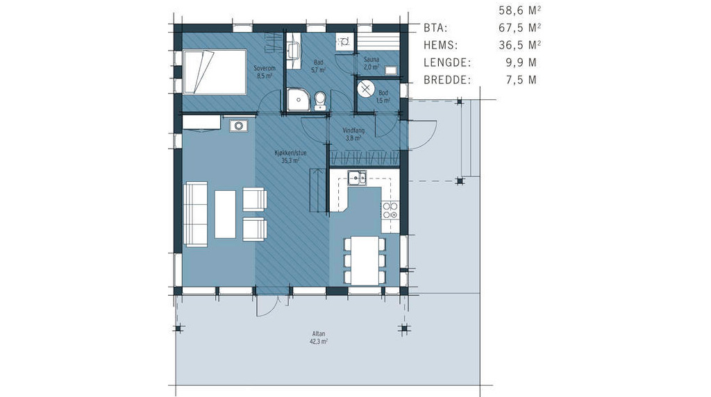
Hyttedetaljer

Dette er moderne, kompakt og arealeffektiv modell som gir deg mye hytte for pengene. Siden to av soverommene ligger på hemsen, utgjør stue og kjøkken det meste av hovedplanet.

Dette gir god utnyttelse av hyttas grunnflate og en ryddig planløsning. Rikelig med vinduer og kort vei ut til en romslig altan gjør at oppholdsrommet virker enda større. Hytta er dessuten utstyrt med sauna og kort vei til en påfølgende dukkert i Vestfjorden!

Solgt

 
Ønsker du denne eller en annen hyttemodell på en annet tomt, er det bare å ta kontakt med oss for et uforpliktende tilbud